Beschrijving
Licht en ruim gezinshuis met garage in fijne buurt
Stel je eens voor: wonen in een rustige, groene wijk, met alle voorzieningen dichtbij én de duinen en het strand op fietsafstand. Dat kan in deze ruime hoekwoning in de geliefde wijk Molendijk. Met vier slaapkamers, een diepe tuin, een garage en een royale oprit is dit het ideale gezinshuis.
De omgeving
Je woont hier heerlijk centraal. Op een paar minuten lopen ligt winkelcentrum Geesterduin, waar je terecht kunt voor je dagelijkse boodschappen, maar ook voor mode, speciaalzaken en een grote supermarkt. Voor gezinnen is dit een toplocatie: er zijn meerdere basisscholen en middelbare scholen in de buurt, allemaal op loop- of fietsafstand.
Daarnaast heeft Castricum een zwembad, bioscoop, sportverenigingen, gezellige restaurants en zonnige terrasjes. En dan is er nog de grootste troef: de natuur. Vanuit huis fiets je in een paar minuten naar het uitgestrekte duin- en bosgebied. Hier kun je eindeloos wandelen, hardlopen of fietsen. En op een zomerse dag? Binnen 15 minuten sta je op het strand van Castricum aan Zee – voeten in het zand, drankje in je hand, of een heerlijke strandwandeling bij zonsondergang.
Qua bereikbaarheid zit je hier ook uitstekend: met de auto rijd je in 20 minuten naar Alkmaar en in een half uur naar Amsterdam. Het NS-station van Castricum ligt bovendien op slechts een paar minuten fietsen, dus ook met de trein ben je snel onderweg.
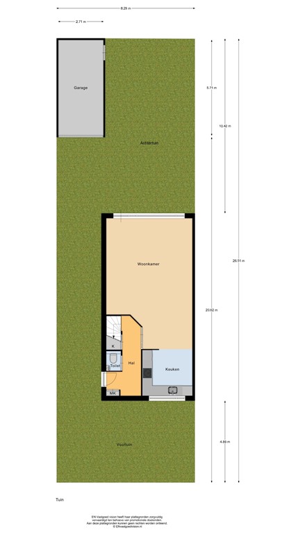
Begane grond
Via de entree met hal, meterkast, toilet en trapopgang kom je binnen in de lichte woonkamer. Dankzij de hoekligging heb je hier veel ramen en dus volop daglicht. De woonkamer voelt ruim en gezellig en loopt door naar de open keuken in hoekopstelling, uitgevoerd in een lichte kleurstelling. Hier kook je met plezier terwijl je toch contact houdt met het gezin of je gasten in de woonkamer.
Eerste verdieping
Op de eerste verdieping vind je drie slaapkamers. Aan de voorzijde ligt een royale slaapkamer met dakkapel. Daarnaast is de badkamer, uitgerust met een ligbad, aparte douche, toilet en wastafel. Aan de achterzijde zijn nog twee slaapkamers, ideaal als kinderkamer, werkkamer of inloopkast.
Tweede verdieping
De vaste trap brengt je naar de tweede verdieping. Hier is de voorzolder met ruimte voor de wasmachine, droger en de CV-ketel. Dankzij het dakraam is dit een prettige, lichte plek. Daarnaast bevindt zich hier de vierde slaapkamer, eveneens met dakraam, die je eenvoudig kunt gebruiken als logeerkamer, tienerkamer of werkplek. Ook is er volop bergruimte, handig voor alles wat je niet dagelijks nodig hebt.
Buitenruimte
De achtertuin is ruim 10 meter diep en ligt op het zuidoosten. Dat betekent: lekker veel zon, maar ook genoeg plek voor een fijne zithoek of een speelplek voor kinderen. De tuin grenst aan de garage en de oprit, waardoor je altijd directe toegang hebt. Aan de voorkant geniet je bovendien van de ruimte en privacy die een hoekwoning biedt.
Bijzonderheden
• Inhoud 424 m3
• Woonoppervlakte 116 m2
• Energielabel B
• Garage met ruime oprit
Plattegronden
175253014_martin_luther_k_tuin_20250730_916248.jpg
175253014_martin_luther_k_begane_grond_20250730_40f83e.jpg
175253014_martin_luther_k_1e_verdieping_20250730_0d5e33.jpg
175253014_martin_luther_k_2e_verdieping_20250730_ed8f04.jpg