Beschrijving

Aan het geliefde Reigerpark, op een rustige en groene locatie, staat deze charmante schakelbungalow met een heerlijke tuin en een eigen oprit.
Een fijne woonplek voor wie comfortabel wil wonen zonder trappen, maar wél met de ruimte en vrijheid van een ruime kavel en veel privacy.
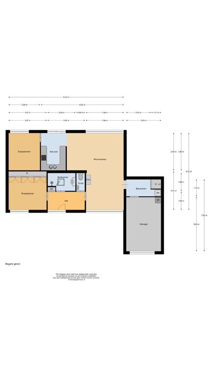
De woning is voorzien van een keuken met royale bergruimte, een nette badkamer en een Plameco-plafond in de woonkamer.
De open haard is momenteel dichtgemaakt, maar kan eenvoudig weer in gebruik worden genomen door een pijp op het dak aan te sluiten. Via de grote schuifpui is er direct toegang tot de tuin, waardoor je optimaal kunt genieten van het binnen-buitenleven. De schuifdeur bij de keuken is voorzien van een hor.

Dankzij de grote ramen is er veel lichtinval in de woonkamer. De ruim opgezette keuken in lichte kleurstelling sluit hier mooi op aan, waardoor koken en tafelen een vanzelfsprekende, gezellige plek in huis vormen.

Vanuit de woonkamer is de bijkeuken bereikbaar, een praktische ruimte met extra bergruimte en aansluitingen. Vanuit de bijkeuken heb je bovendien directe toegang tot de inpandige garage – ideaal voor het droog binnenkomen en extra gemak in het dagelijks gebruik.
De bungalow beschikt over twee slaapkamers, beide goed in te richten als slaap-, logeer- of hobbykamer.
De tuin rondom is groen en vriendelijk aangelegd, deels voorzien van tegels, waardoor je meerdere fijne zitplekken hebt – zowel in de zon als in de schaduw. Deze levensloopbestendige woning is ideaal voor wie gelijkvloers wil wonen met het comfort van voldoende ruimte en privacy, in een prettige en groene woonomgeving.

Bijzonderheden
• Gelijkvloerse, levensloopbestendige schakelbungalow aan het groene Reigerpark
• Energielabel E
• Lichte keuken in nette staat met schuifdeur en hor
• Plameco plafond in de woonkamer
• Open haard dichtgemaakt, eenvoudig te herstellen
• Schuifpui naar de tuin voor optimaal binnen-buitenleven
• Bijkeuken bereikbaar vanuit de woonkamer
• Inpandige garage via de bijkeuken toegankelijk
• Tuin met tegels en veel beplanting
• Garage en eigen oprit
• Rustige woonomgeving met veel groen en voorzieningen dichtbij

Reigerpark 25 is ideaal voor wie op zoek is naar rust, comfort en gelijkvloers wonen in een prettige, groene buurt, een fijne plek om lang met plezier te blijven wonen.

Kenmerken