Verkocht onder voorbehoud: Kooglaan 95, 1911 TC Uitgeest
Verkocht onder voorbehoud: Kooglaan 95, 1911 TC Uitgeest
Verkocht onder voorbehoud: Kooglaan 95, 1911 TC Uitgeest
Verkocht onder voorbehoud B

Kooglaan 95, 1911 TC Uitgeest

€ 585.000,- k.k.

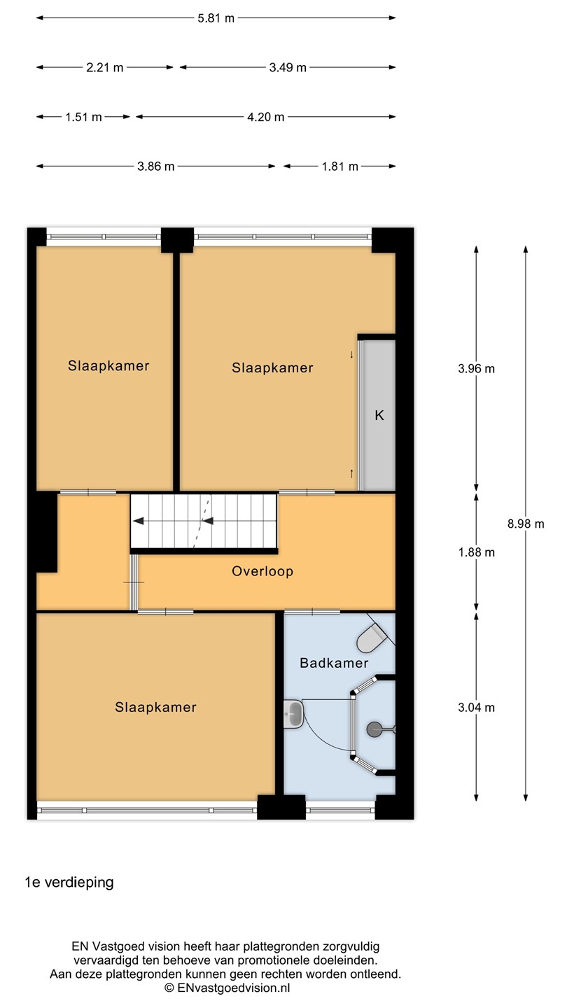
Beschrijving Kooglaan 95

Robuuste geschakelde hoekwoning met inpandige garage in De Koog

Op een fijne, rustige locatie in de geliefde en kindvriendelijke wijk De Koog staat deze verrassend ruime geschakelde hoekwoning met inpandige garage. Een heerlijk gezinshuis waar ruimte, comfort en een praktische indeling perfect...

Kenmerken

Type object Woonhuis, eengezinswoning, hoekwoning
Bouwperiode 1974
Status Verkocht onder voorbehoud
Aangeboden sinds Dinsdag 3 maart 2026

Kooglaan 95 bekijken?

Wij plannen graag een bezichtiging met je in. Tijdens de bezichtiging vertelt een makelaar alles wat je wilt weten.

Sluiten

Recent bekeken