Beschrijving
Vrijstaande woning met garage op toplocatie!
Welkom op de sfeervolle Middelweg. Deze karakteristieke straat herbergt diverse woningen die rond 1900 zijn gebouwd, wat zorgt voor een authentieke uitstraling. Het beste van twee werelden komt hier samen: enerzijds liggen verschillende voorzieningen, zoals de supermarkt, een bakkerij, slager en diverse horeca op loopafstand; anderzijds op fietsafstand kun je heerlijk recreëren bij een van de mooiste watersportlocaties van Uitgeest. We vinden hier een jachthavens en diverse horecagelegenheden.
Bij veel Uitgeesters is dit pand bekend als de schoenmakerij. Hier werden enkele jaren geleden op ambachtelijke wijze schoenen, laarzen en andere lederwaren van klanten hersteld. De ruimte van de schoenmakerij is inmiddels bij de woning betrokken waardoor de woonkamer nu uit 2 gedeeltes bestaat. Een extra pluspunt van deze woning is een slaapkamer en een badkamer op de begane grond. De woning is instapklaar!
Indeling
Entree/hal met meterkast en deur naar de woonkamer aan de voorzijde (voormalige schoenmakerij)
Via de tweede hal is de trap naar de eerste verdieping, en ook de toegang naar de achter(woonkamer). Vanaf hier loop je zo de luxe open keuken in die is voorzien van alle benodigde apparatuur om heerlijk te kokkerellen.
Op de begane grond is een extra slaapkamer en een tweede badkamer gerealiseerd. In de slaapkamer komt een fijne hoeveelheid licht binnen door de raampartijen. De slaapkamer is net als de gehele woning keurig afgewerkt, strak gestuukt en voorzien van inbouwspots. Er zijn openslaande deuren naar de besloten patio tuin. In de kamer vinden we nog een praktische inbouwkast. De moderne badkamer is voorzien van inloopdouche, toilet en dubbele wastafel. De spullen die je niet zo vaak gebruikt kun je stallen op de vliering, bereikbaar met een vlizotrap.
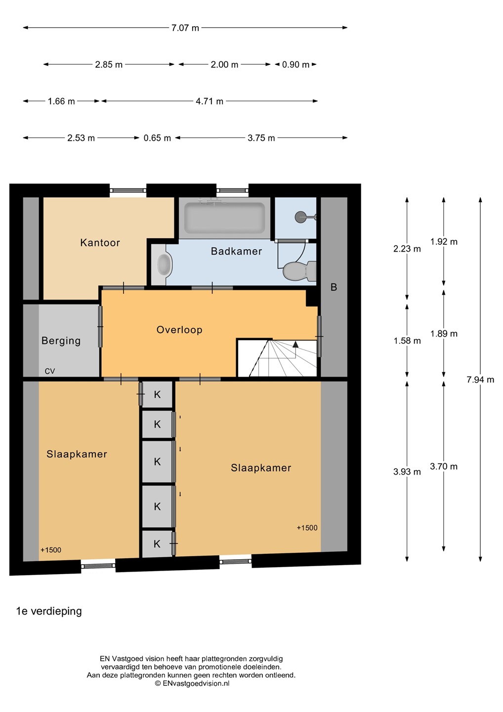
Eerste verdieping
Middels de vaste trap komen we aan op de overloop van de eerste verdieping. Aan de voorzijde zijn twee slaapkamers met inbouwkasten. Aan de achterzijde is een kantoortje en een tweede badkamer. De badkamer is uitgerust met ligbad, douche, toilet en wastafel. Op de overloop is in een berging de CV ketel weggewerkt.
Bijzonderheden
• Instapklaar
• Op fantastische locatie
• Garage aanwezig met oprit
• Slaapkamer en badkamer op de begane grond
• Energielabel C
• Woonoppervlakte 142.5 m2
• Inhoud 648.86 m3