Beschrijving
✨ Op zoek naar een fijne, royale hoekwoning waar iedereen z’n eigen plek heeft én je je auto gewoon op eigen terrein kunt parkeren? Dan wil je dit huis in Uitgeest zeker even komen bekijken!
Je woont hier in een rustige, kindvriendelijke wijk. Doordat de straat is opgezet met woonerven, heb je bijna geen verkeer voor de deur. Superfijn voor kinderen die lekker buiten willen spelen en voor een relaxte sfeer. En nog mooier: je zit hier ook nog eens vlak bij de polder en prachtige natuurgebieden. Perfect voor een wandeling, fietstocht of gewoon even lekker uitwaaien in het groen.
Indeling
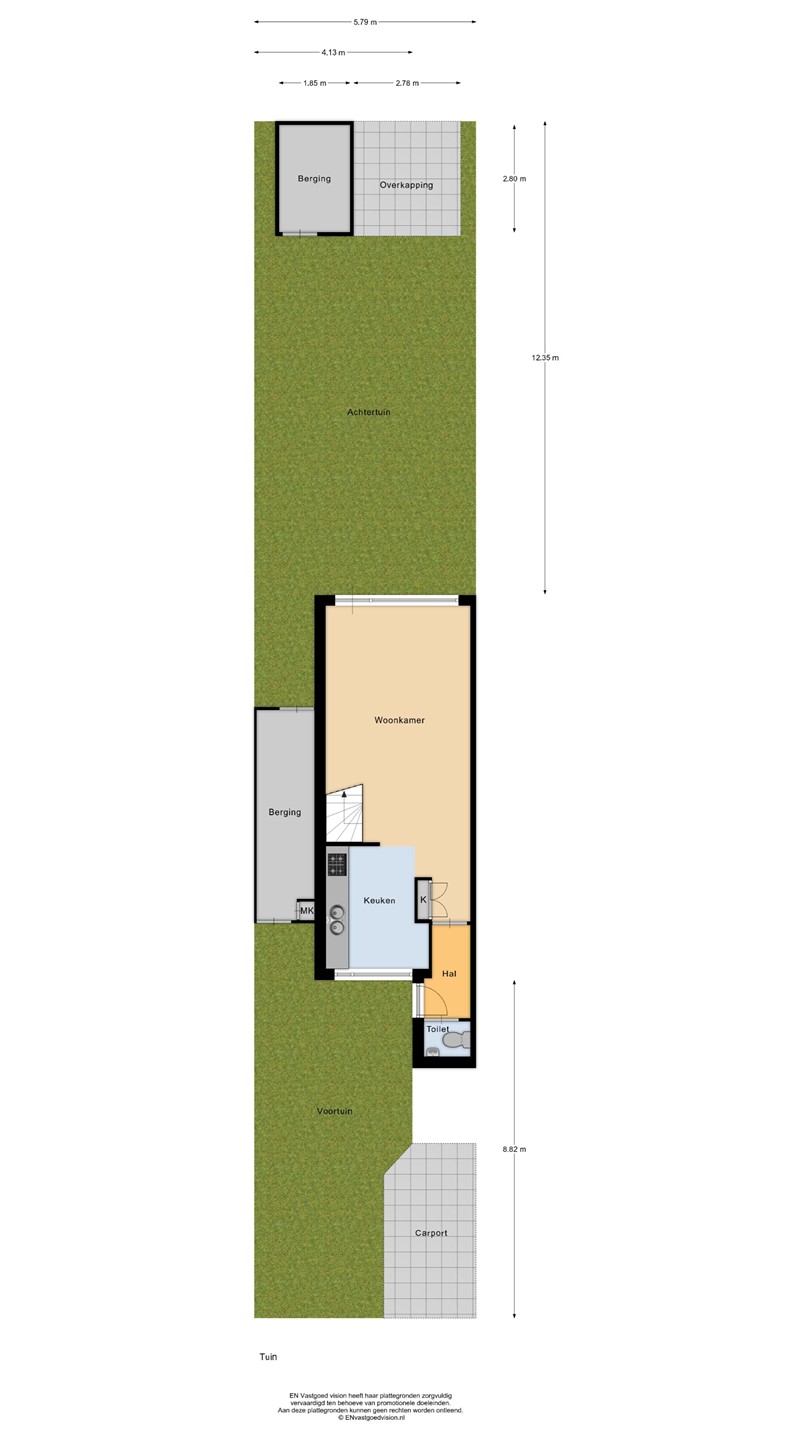
Bij binnenkomst kom je in de hal met toilet en garderobe. Vanuit daar loop je zo de lichte woonkamer in, met een mooie parketvloer en uitzicht op de tuin. De keuken vind je aan de voorkant van het huis. Vanuit de woonkamer loop je via de openslaande deur zó je tuin in.
Tuin
De ruime besloten tuin ligt heerlijk op het zuidoosten, dus je hebt de hele dag zon! Er is een terras om gezellig te zitten, een berging voor je spullen én een overkapping zodat je ook bij een buitje lekker buiten kunt blijven. Via de achterom kom je makkelijk met je fiets of tuinafval achter.
Eerste verdieping
Hier vind je twee ruime slaapkamers en een badkamer met ligbad, douche, toilet en wastafel. Alles wat je nodig hebt dus.
Tweede verdieping
Via de vaste trap bereik je de royale zolder. Hier vind je een ruime overloop met extra bergruimte, de cv-ketel en aansluitingen voor de wasmachine. Daarnaast zijn er nog twee ruime slaapkamers, zodat ieder gezinslid zijn of haar eigen plekje heeft. Dankzij de hoge plafonds voelen de kamers extra ruim aan en geven ze een speels effect.
Pluspunten op een rij:
• Parkeren op eigen terrein
• Vier ruime slaapkamers
• Lichte woonkamer en zonnige tuin op het zuidoosten ☀️
• Berging aan de zijkant van de woning.
• Met kleine aanpassing aan plantenbakken kan je zeker twee auto’s kwijt op je eigen terrein.
• Woning heeft driefasen aansluiting, dus een laadpunt voor Elektrisch Voertuig is eenvoudig te realiseren.
• De voor- en achtergevels zijn opnieuw gevoegd in november 2024.
• Handige berging, overkapping en achterom
• Centrale ligging in Uitgeest, met winkels, scholen en uitvalswegen dichtbij
Kortom: dit is een heerlijk gezinshuis waar je meteen het gevoel van “thuis” krijgt!